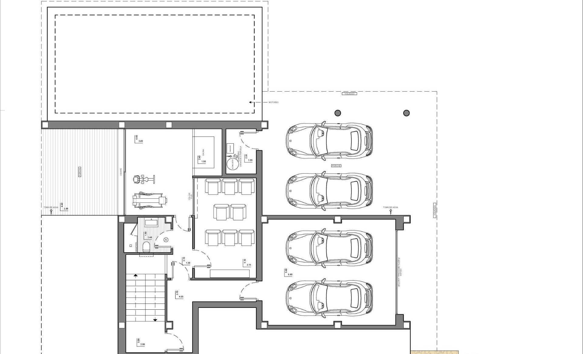
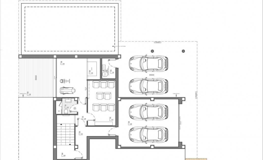
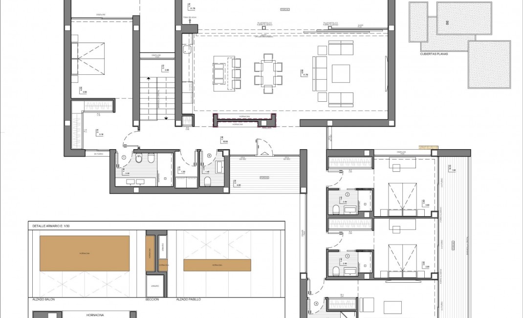
Nieuwbouw moderne villa gelegen in het Cumbre del Sol Resort, een exclusief gebied met grote luxe villa's die elegant uitkijken over de Middellandse Zee. Nieuwbouw villa is ontworpen om te genieten en te recreëren. Alle extra's van deze moderne luxe villa zijn te vinden op dit perceel van meer dan 1.300 vierkante meter. Een villa met 3 slaapkamers, 5 badkamers en parkeergelegenheid voor 4 auto's: 2 plaatsen onder een overdekte veranda en 2 in een afgesloten garage. De hoofdslaapkamer heeft een en-suite badkamer en een ruime inloopkast, vanaf de veranda kun je de Middellandse Zee in al haar schoonheid bewonderen. De andere twee slaapkamers delen een prachtig terras en een extra ruimte, die kan worden gebruikt voor recreatie of als kantoor. Beide hebben een eigen badkamer. Voor extra comfort liggen de woon/eetkamer en keuken op dezelfde verdieping. De keuken staat in verbinding met de woonkamer via een eiland, dus niets scheidt je van je vrienden. Grote ramen leiden naar het solarium met overloopzwembad dat opgaat in de zee. De exclusiviteit van deze moderne villa ligt in de benedenverdieping, die speciaal is ingericht om de hele familie te vermaken. Er is een eigen fitnessruimte met badkamer en sauna en een bioscoopzaal. Alles wordt geleverd met een veranda waaronder je kunt ontspannen omringd door de rust van de zee. Als je op zoek bent naar een huis dat anders is, dan biedt Villa de extra ruimte die je dag tot dag bijzonder maakt.