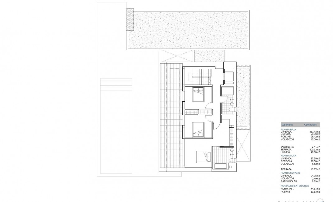
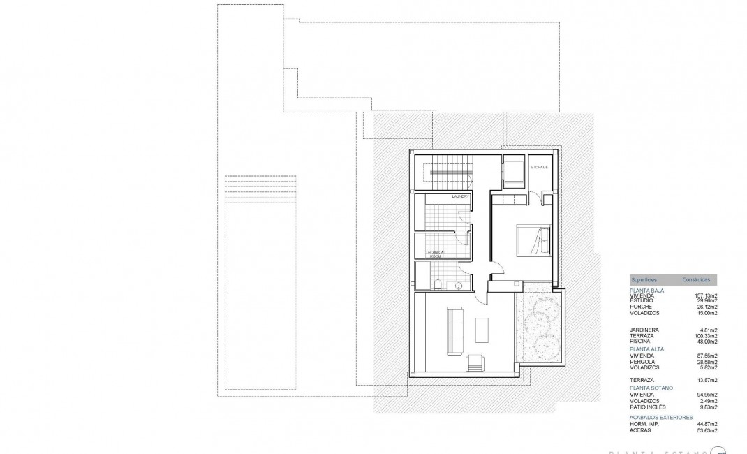
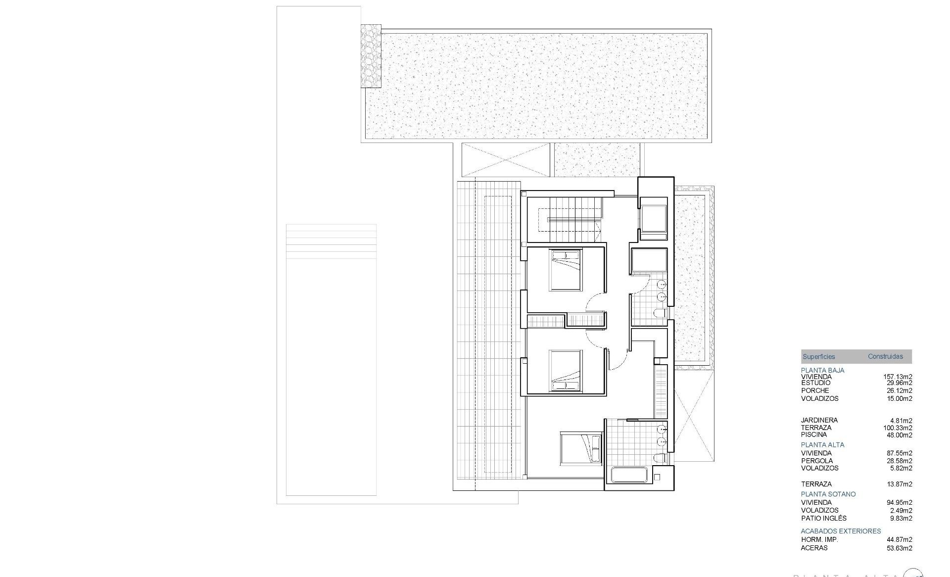
Modern ontwerp met eersteklas kenmerkenDeze prachtige nieuwbouwvilla ligt in het pittoreske kustplaatsje Moraira, op slechts 3 km van de sprankelende Middellandse Zee. Met een eigentijds en functioneel ontwerp biedt deze woning met twee verdiepingen en een ondergronds niveau een royale leefruimte van 395 m². De villa is ontworpen om comfort en natuurlijk licht te maximaliseren en combineert luxe met praktische aspecten tot in de kleinste details. Ruime en goed geplande indelingDe begane grond is zorgvuldig ontworpen voor een sociaal leven, met een ruime woon- en eetkamer, een moderne keuken en een slaapkamer. Op de bovenverdieping zijn extra slaapkamers, elk met een adembenemend uitzicht en ultiem comfort. Met 6 slaapkamers en 5 badkamers is deze villa perfect voor grote gezinnen of mensen die graag gasten ontvangen. Het ondergrondse niveau biedt extra aanpasbare ruimte, ideaal voor een fitnessruimte, bioscoop of wijnkelder. Bouw van topkwaliteitDeze villa is gebouwd met hoogwaardige materialen en aandacht voor detail, waardoor je verzekerd bent van een duurzaam en stijlvol huis:Porseleinen tegels van het prestigieuze merk Saloni.Een voordeur uitgerust met een drietraps veiligheidsslot voor gemoedsrust.Guardian Sun Climalit veiligheidsglas voor verbeterde isolatie en veiligheid.Elektrische rolluiken in alle slaapkamers voor extra gemak.Vloerverwarming met een Mitsubishi warmtepomp voor comfort het hele jaar door.Mitsubishi-airconditioningsystemen in alle woonkamers en slaapkamers met klimaatregeling. Privézwembad en buitenvoorzieningenGeniet van een luxe privézwembad met onderwater LED-verlichting, een Romeinse trap en een ingebouwde buitendouche. De buitenkant van de villa is ontworpen voor gemak en privacy, met een automatische toegangspoort met afstandsbediening en een voetgangersdeur voor het gemak. Toplocatie in MorairaDe villa ligt in een rustige buurt en is ideaal gelegen dicht bij de belangrijkste voorzieningen en attracties: Moraira Strand: 3 kmVliegveld Alicante: 92 kmLa Sella Golf Resort: 25 kmWinkelcentra: 5 kmHaven van Moraira: 4 km Moraira staat bekend om zijn charmante sfeer aan de kust, uitstekende eetgelegenheden en levendige plaatselijke cultuur, waardoor het een perfecte plek is om te wonen of te investeren in een vakantieverblijf. Plan uw bezichtiging vandaagMis deze kans niet om een luxe villa te bezitten op een van de meest gewilde locaties in Spanje. Neem nu contact met ons op om een bezichtiging te regelen en dit prachtige object van jou te maken!