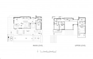
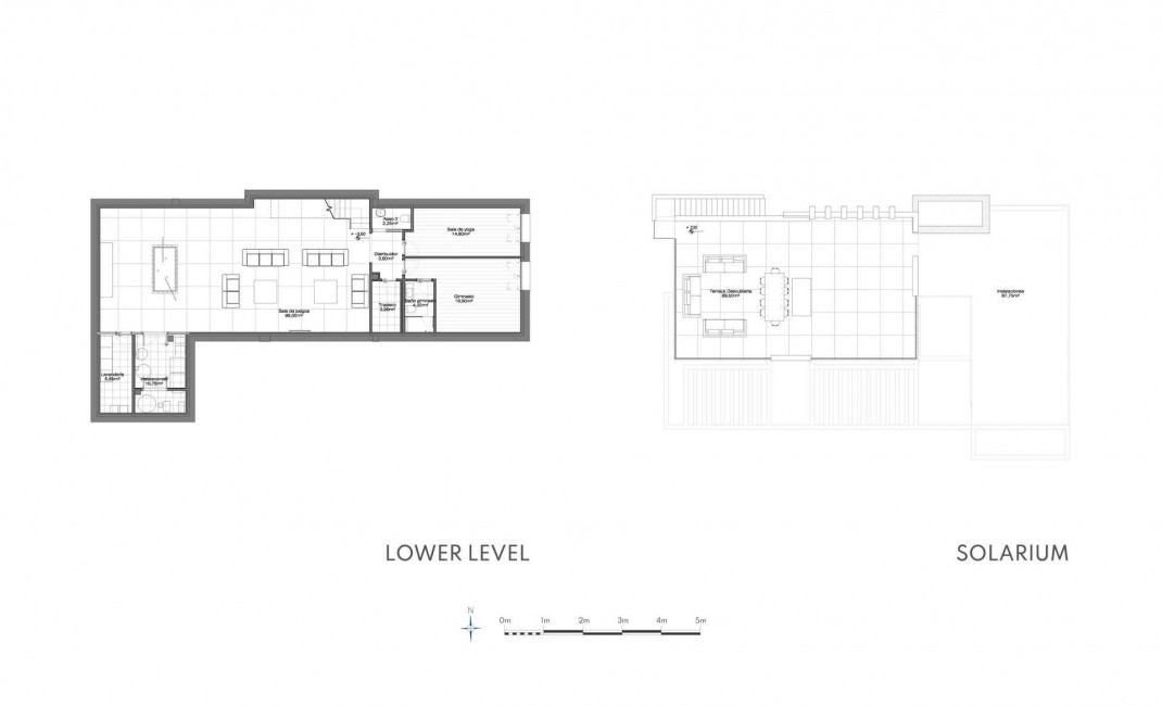
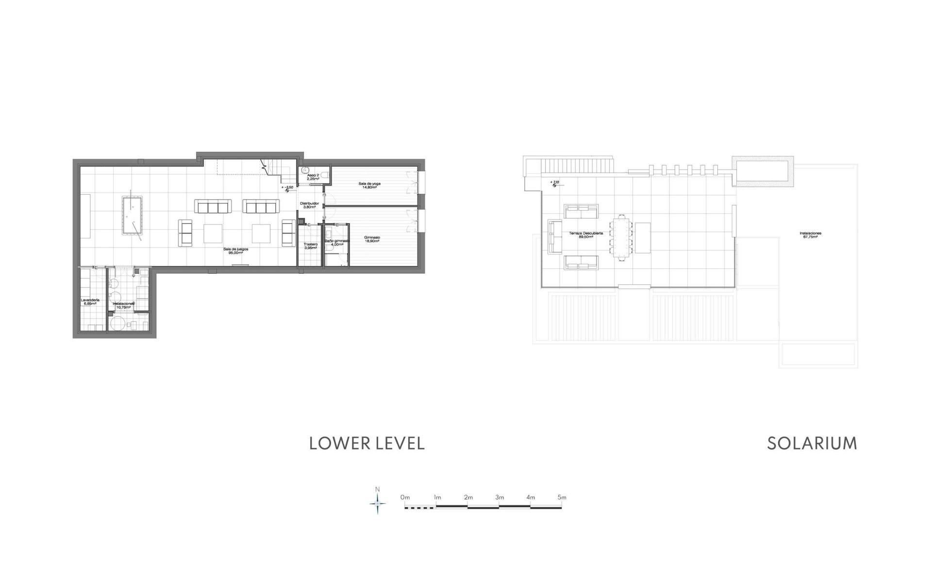
NEW BUILD LUXURY VILLAS NEAR MARBELLA Nestled within the illustrious enclave of Nueva Andalucia, New Project provides residents a luxurious escape that embodies the true essence of luxury living. With its privileged location in Nueva Andalucia, residents are granted convenient access to a plethora of nearby amenities, as well as sweeping views of the surrounding mountains and sea. Urbanization stands as a sanctuary of innovation and luxury, serving as a testament to the synergy of modern design and timeless elegance. Residents are granted an elevated lifestyle, with the finest elements of architecture, security and personalisation all combined. This visionary project redefines the concept of a modern urbanisation, offering an unparalleled lifestyle characterised by refinement, security and design ingenuity. Comprising a collection of 26 New Build Luxury villas, urbanization presents a harmonious blend of architectural brilliance and functional elegance. Designed by the visionary architect Ismael Mérida, the villas stand as modern marvels, each spanning three levels, including a solarium and basement, all united by a ground floor. Facing the cardinal directions of South, East, South East and West, the villas embrace the sun’s journey, casting enchanting hues and shadows throughout the day. What truly sets this project apart is its innovative approach to vehicular circulation. Beneath the residences, an ingeniously designed avenue accommodates the flow of cars, as well as access to private carports and garages, discreetly hidden from sight. From an aerial perspective, what captures the eye is not a network of roads, but a network of pedestrian pathways and lush landscapes, with vehicles tucked away underneath connecting to garages and carports. This captivating feature not only enhances the aesthetic appeal but also fosters an atmosphere of serenity.Immersed in the tranquillity of a gated community with 24-hour security surveillance, urbanization ensures an environment of complete peace of mind. A security guard stationed at the entrance adds an additional layer of security and reassurance. A single entrance and exit point not only enhance security but also contribute to the sense of seclusion and privacy that defines this exclusive enclave. Residents can be confident that only they will have access to the community, and guests will be granted access upon approval. Diversity flourishes at this urbanization with three distinct typologies. The small and medium residences share a refined similarity, while the larger double-plot villas offer expansive living on a grand scale. Upgrade packages are available that will allow residents to tailor their villa to their precise desires. 23 of these homes boast a harmonious symmetry in size, providing a consistent and inviting atmosphere throughout the community. The 23 homes are divided into 2 typologies: Typology A designed by GC-Studio and Typology B designed by J. A. Flores. Adding an extra layer of distinction, 3 flagship Signature Villas stand as iconic landmarks of prestige, each exuding its own unique charm. These 3 villas are classified as Typology C, designed by Pedro Peña. All villas not only have their own bespoke amenities such as entertainment rooms, home cinemas and home gyms, but also have access to communal amenities such as an incredible gymnasium and state-of-the-art SPA with an indoor pool, hammam, sauna and ice bath. The Typology A villas comprise smaller-sized residences, each characterised by impeccable interior design curated by the renowned design studio GC-Studio. These villas are further classified into two subtypes, A1 and A2. The distinctions between these typologies lie in their orientations, the arrangement of bedrooms on each level and the availability of private carports or garages. A1 Villas feature a private carport accessible through the avenue beneath the residences, while A2 Villas come with their own private garage, similarly accessed through the same avenue. Besides their distinctive features, all Typology A Villas are equipped with an entertainment level, enhancing the overall lifestyle experience for residents. The Typology A Villas elevate the living experience with private infinity pools and meticulously landscaped gardens. Adding an extra layer of luxury and entertainment, each residence is crowned with a bespoke solarium, offering residents a unique and private space for leisure and relaxation. The community’s shared spaces are a testament to its commitment to wellness and indulgence. A lavish SPA and state-of-the-art gymnasium cater to the physical well-being of residents, while meticulously manicured gardens provide a haven for relaxation. The SPA boasts luxurious amenities such as an indoor pool, hammam, sauna and ice bath, all thoughtfully curated to enhance residents’ lifestyle. The communal gardens are immaculately manicured, offering residents verdant areas ideal for relaxation.