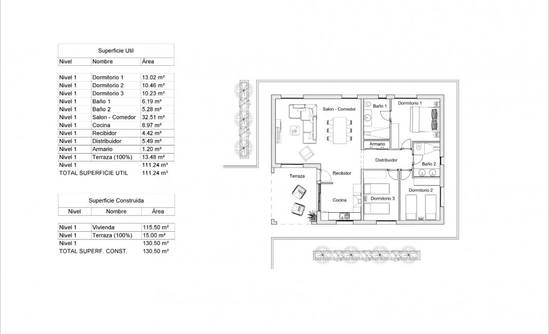
Newly built villas with several models to choose from, with 2 or 3 bedrooms, one or two floors, and built with slabs or a frame structure. The exact price will be calculated depending on the model and plot chosen. All villas are built on rustic plots of over 10,000 m2, of which 2,500 m2 will be fenced. The villas have an open-plan kitchen with living room, fitted wardrobes, private swimming pool, porch and outdoor parking space. There are several plots to choose from. The price has been calculated based on a plot priced at £55,000 (if another plot is chosen, the difference will be paid according to the price of the plot). Self-build project, delivery in approximately 12 months from the granting of the licence. If you are looking for a peaceful setting, close to typical Spanish villages away from mass tourism, surrounded by mountains, with a very large plot and about 30 minutes from the sea, this is your home. La Romana is a typical Spanish village with all the amenities you need for everyday life, surrounded by mountains and with several natural areas nearby where you can go hiking or mountain biking. Located 30 minutes from Alicante airport.