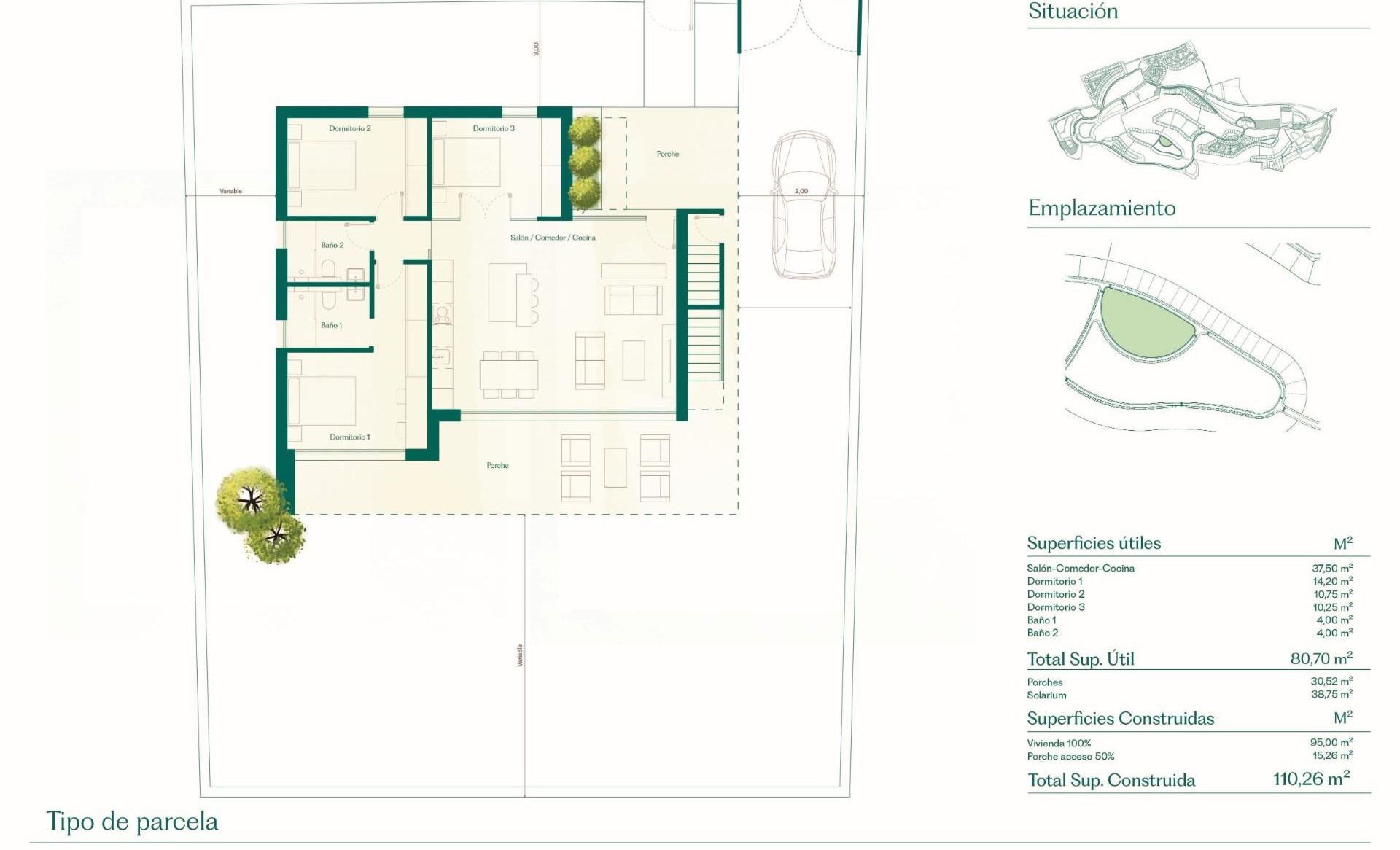
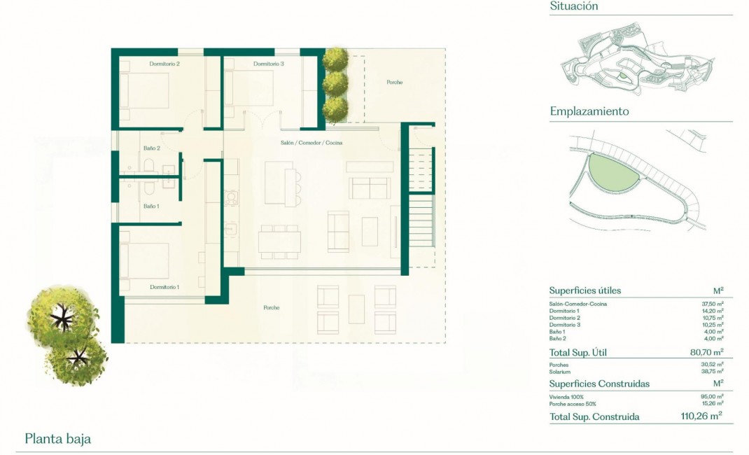
Modern villas in one of Spain's finest golf resorts Discover a unique opportunity to purchase a newly built villa at an exceptional price in the Hacienda del Álamo Golf Resort, located between the historic cities of Cartagena and Murcia, in the heart of the Costa Cálida. These contemporary villas are designed to offer comfort, privacy and elegance, and are set in an exceptional environment dedicated to golf and leisure. Each property offers a spacious layout with 3 bedrooms and 2 bathrooms on one floor. Private rooftop solarium. With plots starting at 378 square metres and a built area of 111 square metres, these homes offer ample space for indoor and outdoor living. High-quality features and finishes These villas are equipped with all modern amenities to ensure maximum comfort and style, including: Garden with drip irrigation systemFully equipped kitchen with cupboards and appliances includedPre-installation of ducted air conditioningBathrooms with furniture, mirrors and shower screensAluminium windows with thermal break and double glazingAccess to a large communal swimming pool with natural grass and children's play areaPossibility of adding a private swimming pool at an extra cost Luxury living at Hacienda del Álamo Golf Resort Hacienda del Álamo is renowned as one of Spain's finest golf resorts, offering its residents a relaxed, sporty and comfortable lifestyle. 18-hole golf course and academySports facilities including tennis, paddle tennis, gym and fitness classesMain clubhouse with panoramic views, a Mediterranean restaurant and sunny terraces4-star hotel and spa for relaxation and well-beingSpaces for the whole family, with children's play areas, swimming pools and bike lanes.Traditional Spanish village with shops, cafés and new restaurants opening soon. Strategic location with excellent connections Corvera Airport (Murcia): 18 km (approx. 15 minutes)Cartagena: 36 kmMurcia city centre: 40 kmMar Menor beaches: 28 kmShopping centres (Dos Mares, Espacio Mediterráneo): less than 30 km Your dream home next to the golf course awaits you Whether you are looking for a permanent residence, a holiday retreat or a smart investment on the Costa Cálida, these golf course villas at Hacienda del Álamo are the perfect choice. Contact us today for more information or to arrange a personalised viewing.