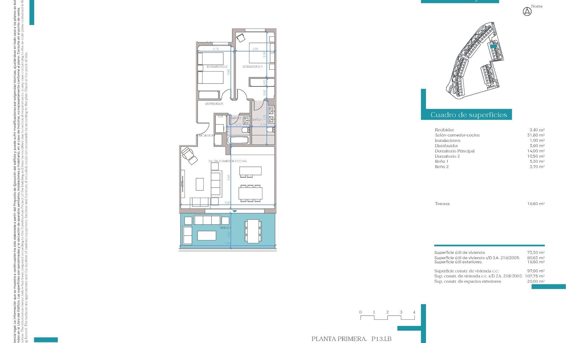
NEW BUILD RESIDENTIAL COMPLEX NEAR ESTEPONA New Build stylish and contemporary development of 95 apartments and penthouses, located in a convenient and central location on the New Golden Mile. Whether you are looking for the perfect holiday home or perhaps a new permanent residence you will be spoilt for choice with the vast array of amenities on your doorstep. The New Golden Mile offers everything from golf courses and beaches to schools, entertainment, shopping and dining. A sleek architectural design combined with open-plan interiors and modern amenities creates one of the most attractive new-build offerings on the market today, no stone has been left unturned in the design of this residential complex to create the perfect oasis for modern day living. Some of the details that have been meticulously thought of include top quality finishes, spacious interiors and terraces with sea and mountain views. In addition, the community and communal areas have also been meticulously designed, some of the features on offer include; a secure entrance, private parking and storage, large landscaped gardens, a stylish pool deck and a professionally equipped gymnasium and working/meeting area complete with café. Estepona is perfect place to enjoy the tranquillity, while you can access a wide range of outdoor sports activities, thanks to its proximity to the Estepona Golf courses and its spectacular beaches. Estepona Golf is an 18-hole course situated between Gibraltar and Puerto Banús; on the new golden mile, just 3 km from the beach and with a wide variety of services and facilities on offer locally.