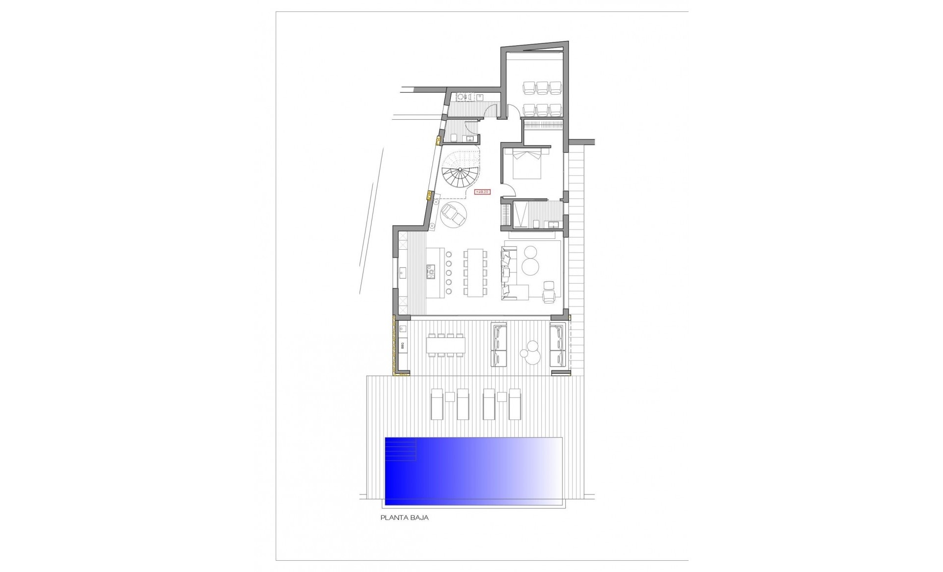
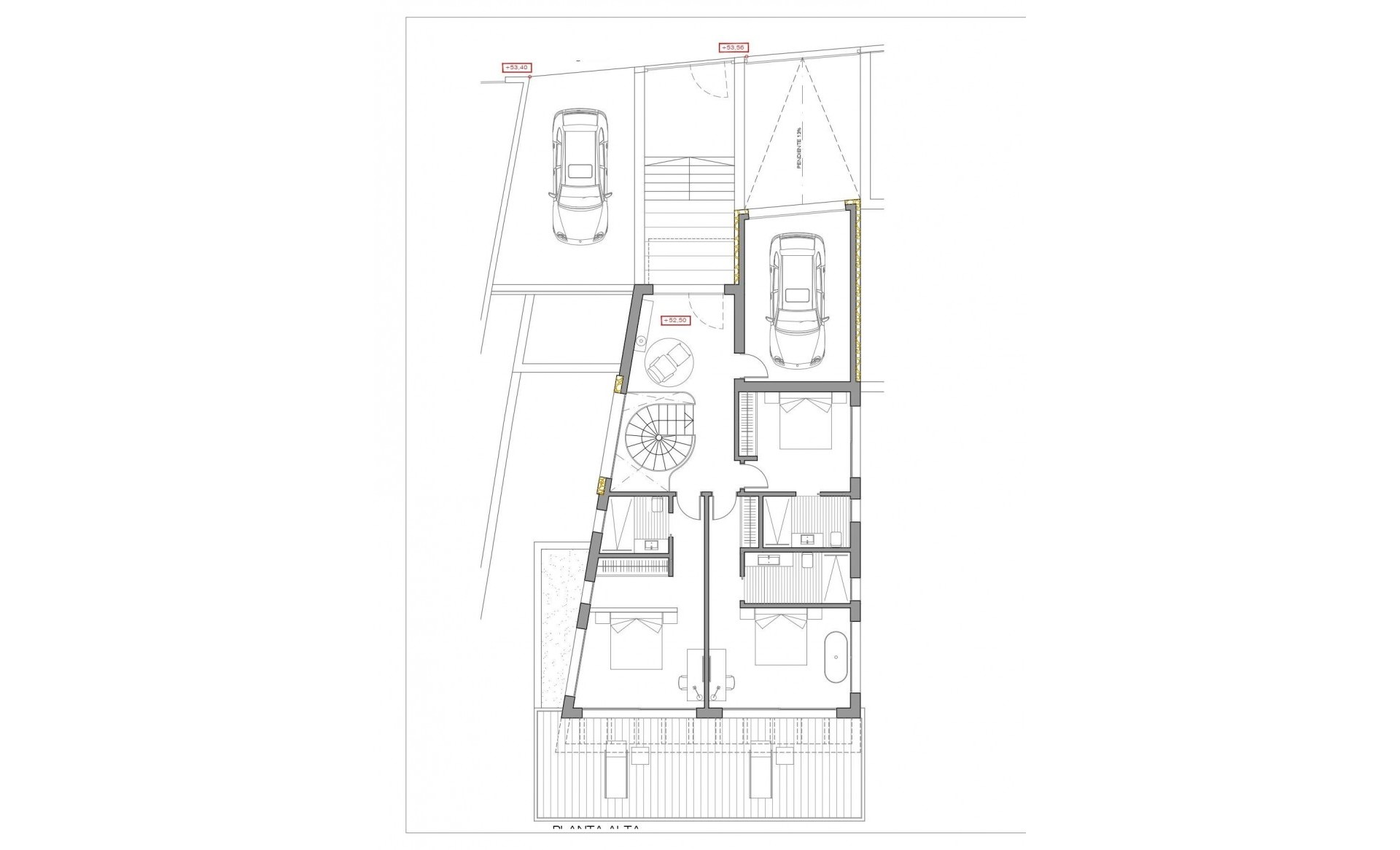
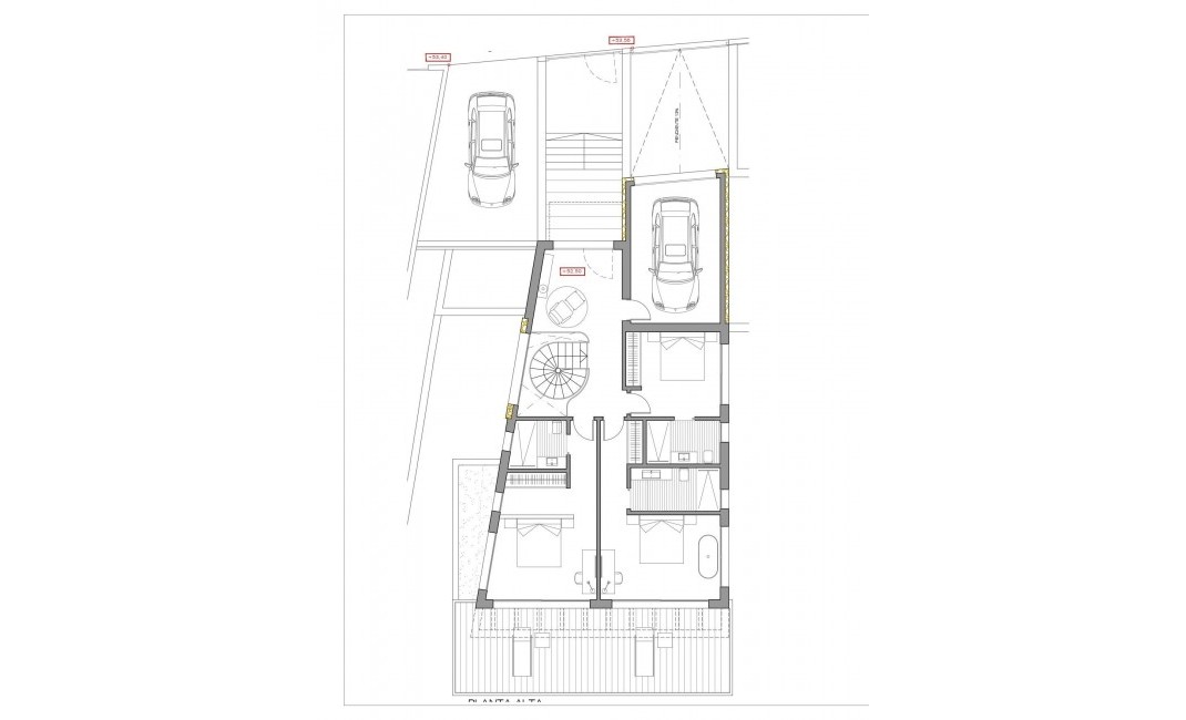
Emplacement privilégié à proximité de la plage et du centre-ville Cette villa de luxe à Moraira est idéalement située à seulement 1,8 km de la plage et du centre-ville animé, offrant un équilibre parfait entre intimité et commodité. Moraira, charmante ville côtière de la Costa Blanca, est connue pour ses plages de sable fin, ses eaux cristallines et son style de vie méditerranéen. La ville dispose d'un large choix de restaurants, de bars, de supermarchés et d'un port de plaisance animé. L'aéroport international d'Alicante est à environ 90 km (1h15) par l'autoroute A7, tandis que l'aéroport de Valence se trouve à une distance similaire au nord, ce qui rend l'accès simple et pratique. Design moderne et intérieurs spacieuxConstruite sur un terrain généreux de 912 m², cette villa offre une surface totale de 350 m² répartis sur deux étages. La maison comprend 4 chambres avec salle de bains privative et des toilettes pour invités, toutes finies avec des matériaux de première qualité. Le rez-de-chaussée comprend un salon et une salle à manger lumineux et ouverts, reliés à une cuisine moderne avec îlot central. De là, de grandes portes coulissantes s'ouvrent directement sur la terrasse, la cuisine d'été et la piscine privée. Une chambre avec salle de bains attenante, des toilettes pour invités, une buanderie et une pièce polyvalente complètent ce niveau. Étage supérieur élégant avec vue sur la merUn escalier design mène à l'étage supérieur, qui comprend trois chambres supplémentaires avec salle de bains privative, ainsi qu'un hall d'entrée spacieux et une terrasse privée avec une vue spectaculaire sur la mer. La propriété dispose également d'un garage, d'un parking privé, du chauffage au sol, de la climatisation, du double vitrage et d'une porte de sécurité renforcée, garantissant un confort et une tranquillité d'esprit maximum. Une oasis méditerranéenne en plein airL'extérieur a été conçu comme un refuge privé, combinant des jardins paysagers, des terrasses couvertes et ouvertes, une piscine privée avec douche extérieure et un espace barbecue idéal pour recevoir. L'orientation sud-est garantit une lumière naturelle abondante tout au long de la journée, rendant chaque coin de la villa lumineux et accueillant. Le mode de vie à MorairaMoraira est réputée pour son atmosphère détendue et cosmopolite. Les familles apprécieront sa plage de sable sûre, tandis que les amoureux de la nature pourront profiter de superbes promenades côtières avec vue sur le Peñón de Ifach à Calpe, situé à seulement 12 km. Les amateurs de golf trouveront également d'excellents terrains de golf à 10-15 km. La villa de vos rêves vous attendDécouvrez la vie de luxe à Moraira avec cette villa exclusive. Contactez-nous dès aujourd'hui pour organiser une visite et faire de ce paradis méditerranéen votre nouvelle maison.