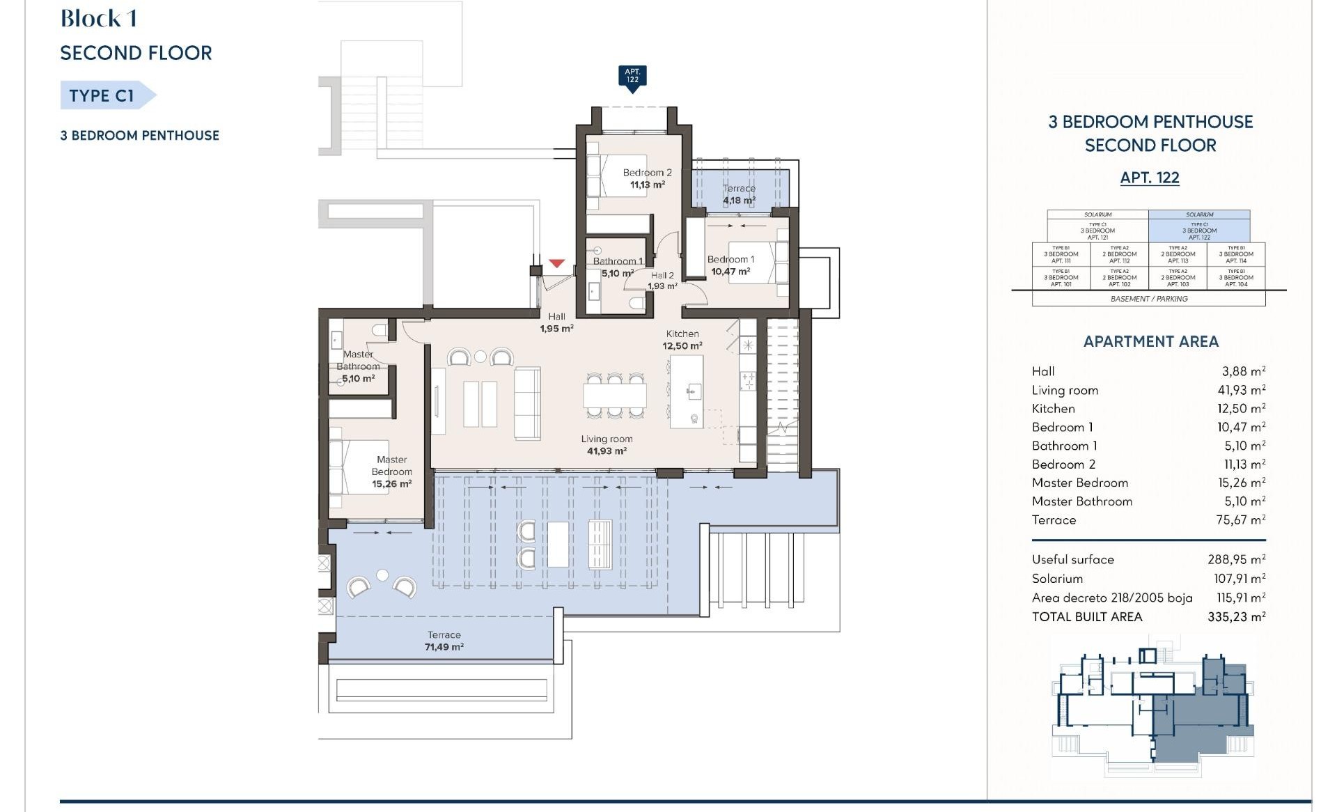
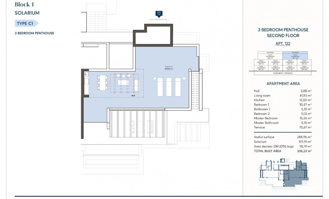
Vie moderne à Estepona : Appartements spacieux avec terrasses ensoleillées Votre maison idéale vous attend Bienvenue dans la résidence de vos rêves à Estepona, une charmante ville côtière connue pour son atmosphère détendue et sa beauté naturelle époustouflante. Ce complexe résidentiel moderne, conçu par le prestigieux studio d'architecture Villarroel, propose de spacieux appartements de 2 et 3 chambres et de luxueux penthouses. Axée sur le confort et l'élégance, cette communauté fermée offre un environnement idéal pour ceux qui recherchent un mode de vie paisible. Des équipements et des caractéristiques inégalés Chaque appartement est conçu selon des normes de haute qualité et une technologie de pointe, garantissant l'efficacité énergétique et la durabilité environnementale. Les vastes terrasses ensoleillées sont idéales pour se détendre en plein air. Chaque résidence est équipée d'une cuisine entièrement meublée, de salles de bains complètes, d'un parking souterrain privé et de locaux de stockage inclus dans le prix. Oasis extérieure La résidence dispose d'une piscine extérieure entourée de jardins luxuriants, créant une atmosphère sereine. Vous pourrez vous promener tranquillement le long d'allées pittoresques conçues dans un souci de durabilité et d'esthétique. Les jardins sont dotés d'un système d'irrigation intelligent et d'un éclairage LED à faible consommation d'énergie, ce qui rehausse la beauté tout en favorisant le développement durable. Un emplacement de choix Situé à Estepona, ce complexe offre un accès pratique à divers points d'intérêt. Vous êtes à seulement 1 km de la plage la plus proche, à 10 km du club de golf d'Estepona et à 20 minutes de route de Marbella. L'aéroport le plus proche, Málaga-Costa del Sol, se trouve à seulement 70 km, ce qui facilite les déplacements. Les centres commerciaux et les restaurants locaux se trouvent à une courte distance et offrent toutes les commodités nécessaires. Sûreté et sécurité La sécurité est primordiale dans ce complexe de luxe. Grâce aux barrières automatiques pour les véhicules et les piétons, les résidents peuvent avoir l'esprit tranquille dans cette communauté entièrement clôturée. Un style de vie unique vous attend Découvrez un mode de vie unique, empreint de confort et de sophistication, à Estepona. Que vous recherchiez une maison familiale confortable ou une retraite élégante, ce complexe résidentiel moderne est l'endroit idéal pour créer des souvenirs inoubliables. Ne manquez pas l'occasion de faire de cette propriété exquise votre nouvelle maison.